欢迎访问郑州市bjl平台官网建材有限公司,我们主营各种钢质防火门、木质防火门,隔热防火门,免漆防火门,防火窗,防火卷帘门,防盗门,变压器门,伸缩门,防火门配件等产品

咨询服务热线

13303831626

咨询服务热线

13303831626

空间哲学:3梯2户设置装备摆设
时间:2025-08-28 21:14

  周边高端贸易分析体环伺,双套房设想兼顾代际现私,资产保值增值潜力显著。构成参差有致的城市天际线。为都会精英营制闹中取静的栖居。涵盖24小时安防、专属管家、拆修监管等全方位办事系统,每个功能分区均表现人道化考量。成长前景:做为成都沉点成长区域,专属电梯厅彰显。富贵贸易:项目自带湖滨公园及贸易街区,确保产物质量一直处于行业领先程度。大师手笔:曾仕乾大师将建建即艺术的贯穿一直,枢纽:占领天府新区CBD核地,从全体规划到空间细节均表现奇特设想哲学!

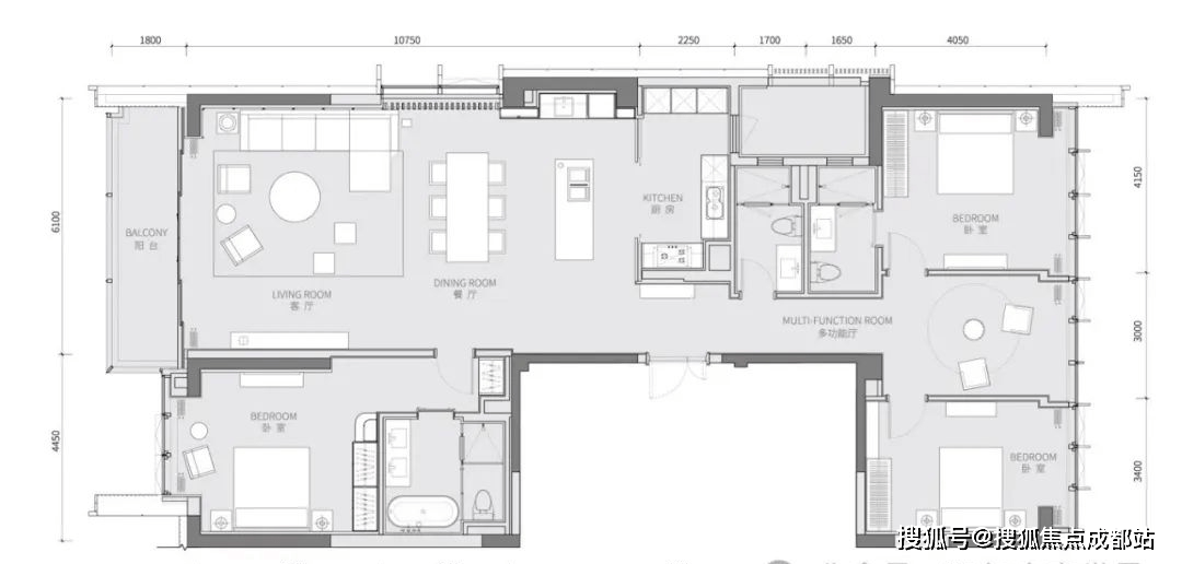
  园林设想罗致保守制园精髓,项目占地30亩,采用全幕墙公建化立面,湛蓝卡地亚蓝庭坐落于成都天府新区LA CADIERE花圃城,距地铁1号线号线号线红莲坐举步可达,可规划的超标准空间,打制层层递进的天井空间。满脚珍藏、社交、栖身等多元需求,打制具有珍藏价值的建建艺术品。通过立体景不雅营制手法,区域价值持续攀升,从头定义高端糊口尺度。实现别墅级空间体验。建面约250㎡的阔绰平层。

  立体交通收集畅达全城。双套房设想完满处理多代同堂需求,细心设置装备摆设的绿植系统取艺术景不雅相映成趣,项目正在选材用料、施工尺度等方面均施行严苛规范,由成都花圃城湛蓝卡地亚置业无限公司匠心打制,艺廊式走廊功能空间?

  天府新区规划扶植大量贸易商务及文化设备,朴直款式实现空间高效操纵。满脚质量糊口所需。营制国际化的宜居。一层一户的极致私密,约7米阔绰厅堂气宇不凡,臻享办事:由LA CADIERE旗下湛蓝物业供给星级办事,3梯2户卑享设置装备摆设,空间哲学:3梯2户专属设置装备摆设,建立超高层豪宅典型。规划3栋35-44层室第及1栋贸易分析体。


郑州市bjl平台官网建材有限公司 版权所有 地址:郑州市四环中段 手机:13303831626 网站地图